Exterior shown is an example and may vary. Click elevation for printable brochure
This plan is the property of Legacy Premier Homes, Inc. and can not be copied, built, or modified without written permission.
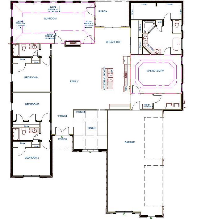
First Floor

| Lot | Upgrades | Price |
|---|---|---|
| Legacy Grove Lot 509 | TBD |
All brick McKinley Plan A is an open plan with a 4 car side entry garage backed by a 2-10 home warranty. Home has 4 bedrooms, 3 baths and a sunroom. Home has wood plus flooring (Mohawk Revwood, Engineered Hardwood or similar product) in all living areas and bedrooms. Great Room features 12' ceiling, 8' tall doorways, extensive trim, gas-log fireplace with upgraded fireplace treatment, recessed lights and ceiling fan. Dining room has 12’ coffered ceiling, extensive trim including shadow box under chair rail. Open Kitchen has 12’ ceilings in kitchen, 8' tall doorways, 9' soft close custom cabinetry and granite counter tops, large island with extra storage and countertop seating, stainless appliances (Gas Cooktop, Cabinet Vent Hood, Wall Oven, Wall Microwave, Dishwasher), tile backsplash, recessed and under cabinet lighting, and huge walk-in pantry. Breakfast has 12’ ceiling and extensive trim. Laundry has custom cabinet, tile flooring. Master bedroom has a 11' double tray ceiling, recessed lighting, extensive trim, ceiling fan. Master bath has 11’ ceilings, freestanding tub, large tile shower with tile bottom, two shower heads, and rimless shower door, separate toilet area, double vanity with granite counter tops and huge walk-in closet. Huge sunroom has vaulted ceiling and ceiling fan. The additional bedrooms have ceiling fans and crown molding. The additional baths have 9' ceilings, tile flooring and granite countertops. Home has rear covered porch perfect for entertaining. Home includes sodded yard amount varies by subdivision, gutters including piping under sidewalks and attractive landscaping. Builder has a closing cost program. Chapel Landing has underground utilities, street lights.
Alabama Builders #: 23623