Exterior shown is an example and may vary. Click elevation for printable brochure
This plan is the property of Legacy Premier Homes, Inc. and can not be copied, built, or modified without written permission.
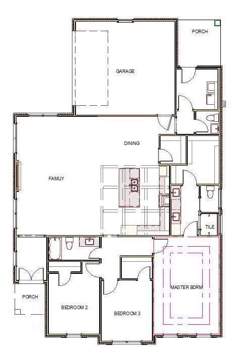
First Floor

| Lot | Upgrades | Price |
|---|---|---|
| Villas At Walton Creek Lot 79 | $414,900 | |
| Villas At Walton Creek Lot 73 | $414,900 |
All brick Kilkenny Plan A is an open floor plan with 2 car side entry garage. Home has 3 bedrooms and 2 and 1/2 baths and is backed by a 2-10 home warranty. Home has wood plus flooring (Mohawk Revwood, Engineered Hardwood or similar product) in all living areas and bedrooms. Great Room features 12' ceiling w/ 8' doorways, extensive trim, electric fireplace, recessed lights and ceiling fan. Open Kitchen includes 12’ coffered ceiling, 9' soft close custom cabinetry with granite counter tops, slab island, gas cook top package stainless appliances (Gas Cook Top, Cabinet Vent Hood, Wall Oven and Microwave, Dishwasher), tile backsplash, recessed and under cabinet lighting, and walk-in pantry with wood shelving. Breakfast area features 12' ceiling and crown molding. Master bedroom has a 11' double tray ceiling, recessed lighting, extensive trim, ceiling fan and large walk-in closet with wood shelving. Master bath has 11’ ceilings, tile shower with rimless door, separate toilet area, granite double vanity. The additional bedrooms have 9' ceilings, ceiling fans and crown molding. The additional baths have 9' ceiling, tile flooring and granite counter tops. Home has a covered back porch with ceiling fan. The home has a tankless Renai water heater. Home includes a fully sodded yard, gutters including piping under sidewalks and attractive landscaping. Builder has a closing cost program. Villas At Walton Creek has underground utilities, street lights, side walks, curb and gutter, Pool and Cabana.
Alabama Builders #: 23623