Exterior shown is an example and may vary. Click elevation for printable brochure
This plan is the property of Legacy Premier Homes, Inc. and can not be copied, built, or modified without written permission.
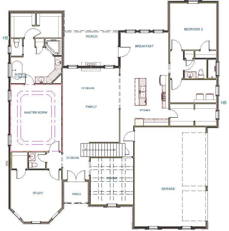
First Floor

Second Floor

The GreenRidge Plan C is a two-story home with 3 car side entry garage and is backed by a 2-10 home warranty. Home has 5 bedrooms (Master bedroom plus one is downstairs), 4.5 baths and an upstairs bonus room which could be a 6th bedroom and a study. Home has wood plus flooring (Mohawk Revwood, Engineered Hardwood or similar product) in all living areas and bedrooms. Great Room features 12' ceiling, 8' tall doorways, extensive trim, gas-log fireplace with upgraded fireplace treatment, recessed lights and ceiling fan. Study features 12' ceiling, extensive trim with closet and half bath next to it, it could be a 6th bedroom or a nursery. Dining room has 9’ coffered ceiling, extensive trim including shadow box under chair rail. Kitchen includes 9’ ceiling, soft close custom cabinetry and granite counter tops, large island with raised bar seating, stainless appliances (Gas Cooktop, Cabinet Vent Hood, Wall Oven, Wall Microwave, Dishwasher), tile backsplash, recessed and under cabinet lighting, and huge walk-in pantry. Breakfast has 9’ ceiling and extensive trim. Laundry has custom cabinet, tile flooring. Isolated Master bedroom has a 11' double tray ceiling, recessed lighting, extensive trim, ceiling fan. Master bath has 11’ ceilings, freestanding tub, corner tile shower with tile bottom, two shower heads and rimless shower door, separate toilet area, double vanity with granite counter tops and huge walk-in closet. This home also has secondary master bedroom, and its bathroom has a tile shower and wider doors to accommodate wheelchairs. The home has hardwood stairs leading to the second story. The additional bedrooms and bonus room have ceiling fans and crown molding. The additional baths have tile flooring and granite countertops. Jack-n-Jill Bath upstairs makes sharing easier. Home has a covered rear porch perfect for entertaining. Home includes sodded yard amount varies by subdivision, gutters including piping under sidewalks and attractive landscaping. Builder has a closing cost program. Chapel Landing has underground utilities, street lights.
Alabama Builders #: 23623