Exterior shown is an example and may vary. Click elevation for printable brochure
This plan is the property of Legacy Premier Homes, Inc. and can not be copied, built, or modified without written permission.
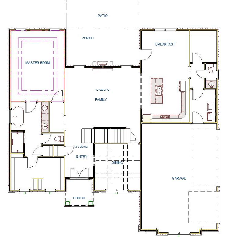
First Floor

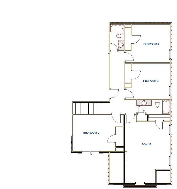
Second Floor

| Lot | Upgrades | Price |
|---|---|---|
| Legacy Grove Lot 483 | TBD |
The Foresthill Plan E is a two story home with 3 car side entry garage and is backed by a 2-10 home warranty. Home has 4 bedrooms and 3.5 baths. Master suite and half bath are downstairs. Three bedrooms and a bonus room are upstairs along with 2 baths. Home has wood plus flooring (Mohawk Revwood, Engineered Hardwood or similar product) in all living areas and bedrooms. Great Room features 12' ceiling, 8' tall doorways, extensive trim, gas-log fireplace with upgraded fireplace treatment, recessed lights and ceiling fan. Dining room has 9’ coffered ceiling, extensive trim including shadow box under chair rail. Kitchen includes 9’ ceiling, 9' soft close custom cabinetry and granite countertops, large island with bar seating, stainless appliances (Gas Cooktop, Cabinet Vent Hood, Wall Oven, Wall Microwave, Dishwasher), tile backsplash, recessed and under cabinet lighting, and huge walk-in pantry with wood shelving. Breakfast has 9’ ceiling and extensive trim. Master bedroom has 11’ double tray ceiling, extensive trim, recessed lighting, and ceiling fan. Master bath has 11’ ceilings, freestanding tub, large tile shower with two shower heads and rimless shower door, separate toilet area, double vanity with granite counter tops and huge walk-in closet with wood shelving. The home has hardwood stairs leading to the second story. The additional bedrooms and bonus room have ceiling fans, crown molding and wood shelving in closets. The additional baths have tile flooring and granite counter tops. Laundry has 9' celling, custom cabinet, and tile flooring. The home has a tankless water heater. Home has a covered rear porch with ceiling fan. Home iincludes sodded yard amount varies by subdivision, gutters including piping under sidewalks and attractive landscaping. Builder has a closing cost program.
| Lot | Desciption | Plan Specific Premium (This is Total Lot Premium) |
|---|---|---|
| Evans and Grubb Lot 6 | 191X660 | |
| Evans and Grubb Lot 7 | 191X659 | |
| Evans and Grubb Lot 8 | 191X658 | |
| Evans and Grubb Lot 9 | 191X657 | |
| Evans and Grubb Lot 10 | 191X656 | |
| Evans and Grubb Lot 11 | 200X655 | |
| Evans and Grubb Lot 15 | 191X653 | |
| Evans and Grubb Lot 16 | 191X653 | |
| Evans and Grubb Lot 17 | 191X653 | |
| Evans and Grubb Lot 18 | 191X654 | |
| Evans and Grubb Lot 19 | 191X655 | |
| Evans and Grubb Lot 20 | 191X657 | |
| Evans and Grubb Lot 21 | 191X658 |
Alabama Builders #: 23623