Exterior shown is an example and may vary. Click elevation for printable brochure
This plan is the property of Legacy Premier Homes, Inc. and can not be copied, built, or modified without written permission.
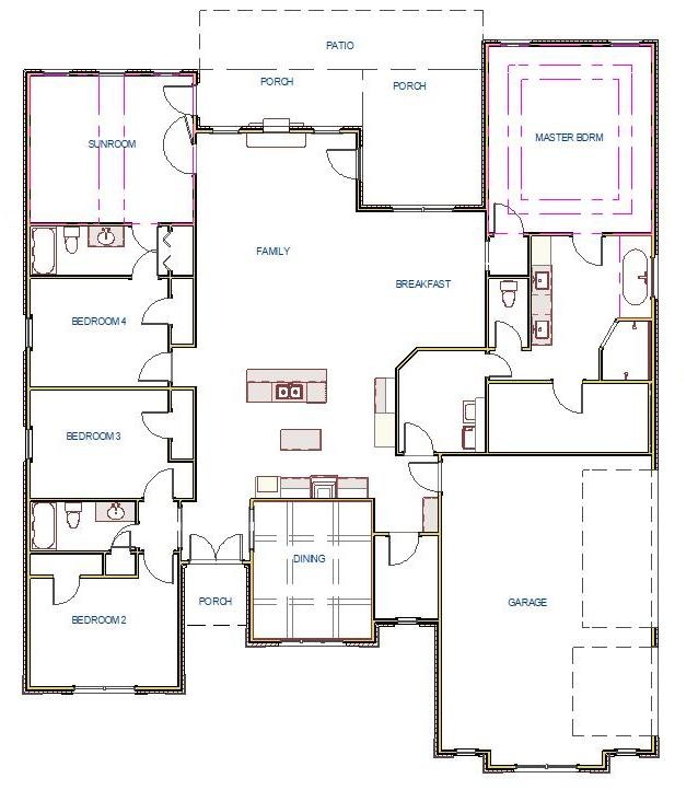
First Floor

All brick Cambridge Plan F is an open plan with a 3 car side entry garage backed by a 2-10 home warranty. Home has 4 bedrooms, 3 baths and a sunroom. Home has wood plus flooring (Mohawk Revwood, Engineered Hardwood, or similar product) in all living areas and bedrooms. Great Room features 12' ceiling, 8' tall doorways, extensive trim, gas-log fireplace with upgraded fireplace treatment, floor outlet, recessed lights and ceiling fan. Dining room has 12’ coffered ceiling, 8' tall doorway, extensive trim including shadow box under chair rail. Open Kitchen includes 12’ ceiling, 9' soft close custom cabinetry and granite countertops, large island with countertop seating, second prep island, stainless appliances (Gas Cooktop, Cabinet Vent Hood, Wall Oven, Wall Microwave, Dishwasher), tile backsplash, recessed and under cabinet lighting, huge walk-in pantry with wood shelving, and drop zone bench. Breakfast has 12’ ceiling and extensive trim. Master bedroom has 11’ double tray ceiling, recessed lighting, extensive trim and ceiling fan. Master bath has 11’ ceilings, freestanding tub, large corner tile shower with two shower heads and rimless door, separate toilet area, large double vanity with granite, huge walk-in closet with wood shelving and access to laundry. Large sunroom has vaulted ceiling and ceiling fan. The additional bedrooms have 9' ceilings, ceiling fans, crown molding and wood shelving in closets. The additional baths have 9' ceilings, tile flooring and granite counter tops., Laundry has 9' ceilings, custom cabinet and tile flooring. Large rear covered porch with ceiling fan. The home has a tankless water heater. Home includes fully sodded yard, gutters (piped under sidewalks) and attractive landscaping. Builder has a closing cost program.Walton Creek has underground utilities, streetlights, sidewalks, curb and gutter, Pool and Cabana.
| Lot | Desciption | Plan Specific Premium (This is Total Lot Premium) |
|---|---|---|
| Walton Creek Lot 11 | 98x152 | $20,000 |
| Walton Creek Lot 14 | Large lot in Knuckle that backs up to trees in common area | $20,000 |
| Walton Creek Lot 25 | Corner Lot 104x150 | $15,000 |
| Walton Creek Lot 26 | Corner Lot 104x150 | $15,000 |
| Walton Creek Lot 37 | Corner Lot 106x150 | $15,000 |
| Walton Creek Lot 49 | Corner Lot 104x150 | $15,000 |
| Walton Creek Lot 50 | Corner Lot 104x150 | $15,000 |
| Walton Creek Lot 59 | Corner Lot 104x150 | $15,000 |
| Walton Creek Lot 121 | Corner Lot 104x153 | $25,000 |
| Walton Creek Lot 122 | Corner Lot 105x155 | $20,000 |
Alabama Builders #: 23623