Kinsale A - $404,900
26445 OLD TOWN DR Villas At Walton Creek Lot 74
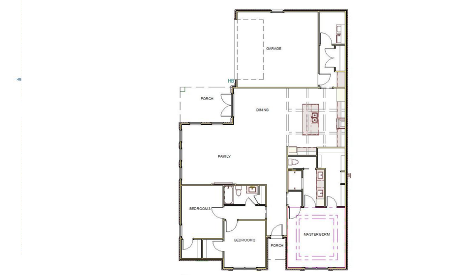
Open Premier Plan 3 Bedrooms / 2 Baths 2 Car Garage 2150 Square Feet
Highlights: No Carpet and Extensive Trim Through-out
Gas Cook Top Package
This plan is the property of Legacy Premier Homes, Inc. and can not be copied, built, or modified without written permission. Exterior shown is an example and may vary.
NO CARPET - Revwood flooring in living areas and bedrooms
Family Room with 12’ ceiling, Electric Fireplace, Recessed Lights, Ceiling Fan
Kitchen with 12’ coffered ceiling, Soft Close Custom Cabinets, Granite Counters, Raised Bar, Gas Cook Top Package, Tile Back Splash, Recessed and Under Cabinet Lights and Pantry
Breakfast Area with 12’ ceiling
Laundry with Custom Cabinet
Master Bedroom with 11' Double Tray Ceiling, Recessed Lights, Ceiling Fan and large walk-in closet
Glamour Bath with 11’ Ceiling, Tile Shower with Door and Double Vanity
Other Bedrooms with 9' ceiling, Crown Molding, Ceiling Fan
Covered Back Porch with ceiling fan
Tankless Water Heater and Sodded Yard
2/10 Builder Warranty and Closing Cost Program
Villas At Walton Creek has Under Ground Utilities, Street Lights, Side Walks, and Natural Gas, Pool and Cabana