This plan is the property of Legacy Premier Homes, Inc. and can not be copied, built, or modified without written permission. Exterior shown is an example and may vary.
NO CARPET - Revwood (or similar) in living areas and bedrooms - Tile in wet areas - Wood shelving
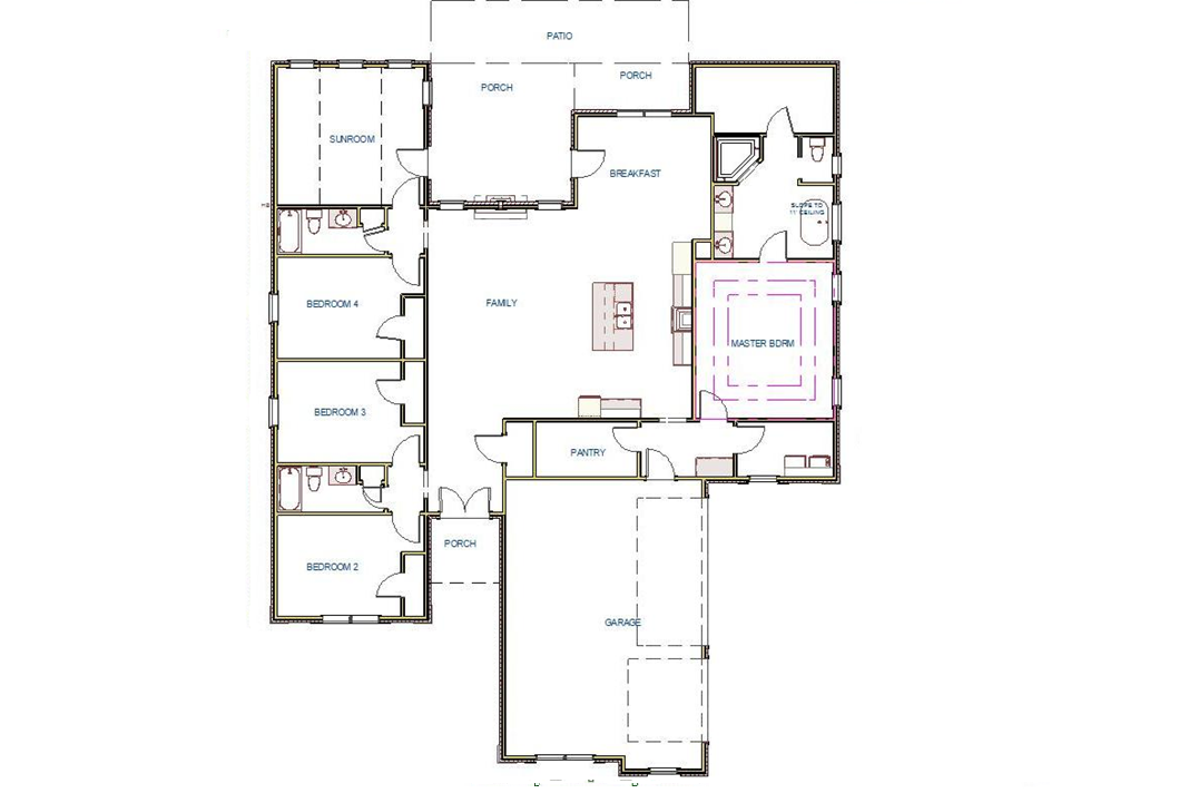
Family Room with 12’ ceiling, 8' doorways, Gas Fireplace, Recessed Lights, Ceiling Fan
Kitchen has 12' Ceilings, 9' Soft Close Custom Cabinets, Granite Counters, Large island with storage and seating, Gas Cooktop Package w/ Cabinet Vent Hood, Tile Back Splash, Recessed and Under Cabinet Lights, Walk-in pantry, drop zone bench
Breakfast with 12' Ceiling
Large sunroom has vaulted ceiling, recessed lights and ceiling fan
Extensive Trim Package
Master Bedroom down with 11' Double Tray Ceiling, Recessed Lights and Ceiling Fan
Glamour Bath with 11’ Ceiling, Free Standing Tub, Corner Tile Shower with dbl shower heads and Rimless Door, Double Vanity with Granite and Huge Walk-in Closet
Other Bedrooms with 9' ceiling, Crown Molding, Ceiling Fan
Laundry with 9' ceiling and custom cabinets
Large Rear Covered Porch with ceiling fan
Tankless Water Heater and Sodded Yard
2/10 Builder Warranty and Closing Cost Program
Walton Creek has Under Ground Utilities, Street Lights, Side Walks, Natural Gas, Pool and Cabana
Elevation 2 - See Website for Additional Elevations