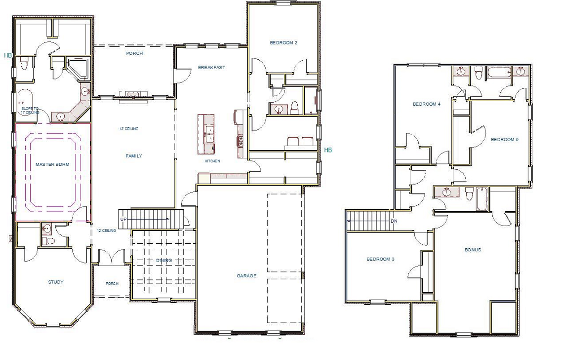
5 Bedrooms / 4.5 Baths Dining, Study and Upstairs Bonus 3 Car Garage 4355 Square Feet
This plan is the property of Legacy Premier Homes, Inc. and can not be copied, built, or modified without written permission. Exterior shown is an example and may vary.
NO CARPET - Revwood flooring (or similar product) in living areas and bedrooms
Family Room with 12’ ceiling w/ 8' doorways, Gas Fireplace, Recessed Lights, Ceiling Fan
Study with 12’ ceiling ceiling fan
Formal Dining Room with 9' coffered ceiling
Kitchen with 9' ceiling, 9' Soft Close Custom Cabinets, Granite Counters, Large island with Seating, Gas Cooktop Package w/ Cabinet Vent Hood, Tile Back Splash, Recessed and Under Cabinet Lights, HUGE Walk-in pantry
Extensive Trim Package and 9’ Ceilings on first floor
2nd Master w/ 9' ceiling downstairs, Crown Molding, Ceiling Fan and Tile Shower
Master Bedroom down with 11' Double Tray Ceiling, Recessed Lights and Ceiling Fan
Glamour Bath with 11’ Ceiling, Freestanding Tub, Large Corner Tile Shower with two shower heads and Rimless Door, Double Vanity with Granite and Huge Walk-in Closet
Large Laundry Room with Cabinets
Other Bedrooms with Crown Molding, Ceiling Fan
Rear Covered Porch
Tankless Water Heater and Sodded Yard
2/10 Builder Warranty and Closing Cost Program
Chapel Landing has Under Ground Utilities, Street Lights, and Natural Gas
Elevation 2 - See Website for Additional Elevations