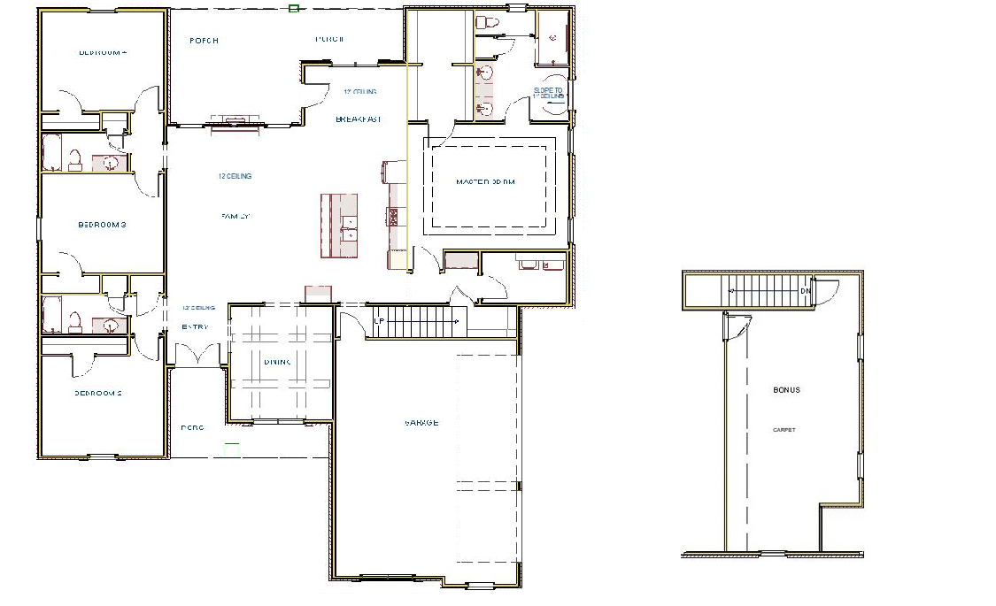
4 Bedrooms / 3 Baths Dining and Upstairs Bonus 3 Car Garage 3300 Square Feet
This plan is the property of Legacy Premier Homes, Inc. and can not be copied, built, or modified without written permission. Exterior shown is an example and may vary.
NO CARPET - Revwood (or similar) in living areas and bedrooms - Tile in wet areas - Wood shelving
Family Room with 12’ ceiling, 8' doorways, Gas Fireplace, Recessed Lights, Ceiling Fan
Dining Room with 12’ coffered ceiling, 8' Doorways
Open Kitchen with 12' ceiling, 8' doorways, 9' Soft Close Custom Cabinets, Granite Counters, Large Island w/ storage and seating, Gas Cooktop Package w/ Cabinet Vent Hood, Tile Back Splash, Recessed and Under Cabinet Lights, Large Walk-in Pantry and Drop Zone Bench
Breakfast with 12’ Ceilings
Laundry with 9' ceilings and custom cabinets
Extensive Trim Package
Master Bedroom down with 11' Double Tray Ceiling, Recessed Lights and Ceiling Fan
Glamour Bath with 11’ Ceiling, Freestanding Tub, Large Tile Shower with 2 Shower Heads and Rimless Door, Double Vanity with Granite and Walk-in Closet
Other Bedrooms with 9' ceiling, Crown Molding, Ceiling Fan
Upstairs Bonus with Crown Molding and Ceiling Fan
Large Rear Covered Porch with ceiling fan
2/10 Builder Warranty and Closing Cost Program
Elevation 2 - See Website for Additional Elevations