5 Bedrooms / 4 Baths Dining, Sunroom and Upstairs Bonus 3 Car Garage 4155 Square Feet
This plan is the property of Legacy Premier Homes, Inc. and can not be copied, built, or modified without written permission. Exterior shown is an example and may vary.
NO CARPET - Revwood flooring (or similar product) in living areas and bedrooms
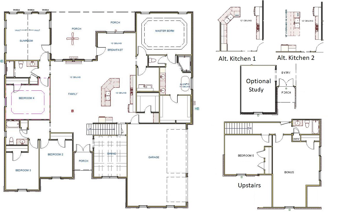
Family Room with 12’ ceiling, 8' doorways, Gas Fireplace, Recessed Lights, Ceiling Fan
Formal Dining Room with coffered ceiling
Open Kitchen with 12' ceiling, 9' Soft Close Custom Cabinets, Granite Counters, Large 45 degree island w/ seating, Gas Cooktop Package w/ Cabinet Vent Hood, Tile Back Splash, Recessed and Under Cabinet Lights, Walk-in Pantry , Drop Zone Bench
Breakfast with 12’ Ceilings
Extensive Trim Package
2nd Downstairs Master with Tile Shower
Sunroom with Vaulted Ceiling, Ceiling Fan
Master Bedroom down with 11' Double Tray Ceiling, Recessed Lights and Ceiling Fan
Glamour Bath with 11’ Ceiling, Freestanding Tub, Large Corner Tile Shower with 2 shower heads and Rimless Door, Double Vanity with Granite and Walk-in Closet
Other Bedrooms and Bonus with Crown Molding, Ceiling Fan
Large Rear Covered Porch
Tankless Water Heater and Sodded Yard
2/10 Builder Warranty and Closing Cost Program
Chapel Landing has Under Ground Utilities, Street Lights, and Natural Gas
Elevation 1 - See Website for Additional Elevations