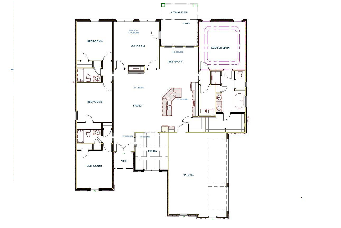
4 Bedrooms / 3 Baths Dining and Sunroom 3 Car Garage 3070 Square Feet
This plan is the property of Legacy Premier Homes, Inc. and can not be copied, built, or modified without written permission. Exterior shown is an example and may vary.
NO CARPET - Revwood (or similar) in living areas and bedrooms - Tile in wet areas - Wood shelving
Family Room with 12’ ceiling, 8' Doorways, Gas Fireplace, Floor Outlet, Recessed Lights, Ceiling Fan
Dining Room with 12’ coffered ceiling, 8' doorways
Kitchen has 12' Ceilings, 8' Doorways, 9' Soft Close Custom Cabinets, Granite Counters, Large 45 degree Island with Seating, Gas Cooktop Package w/ Cabinet Vent Hood, Tile Back Splash, Recessed and Under Cabinet Lights, Walk-in pantry
Sunroom with 12' Ceiling, French Doors and Ceiling Fan
Extensive Trim Package
Master Bedroom with 11' Double Tray Ceiling, Recessed Lights and Ceiling Fan
Glamour Bath with 11’ Ceiling, Free Standing Tub, Large Tile Shower w/ 2 shower heads and Rimless Door, Double Vanity with Granite and Walk-in Closet
Other Bedrooms 9' ceilings with Crown Molding, Ceiling Fan
Laundry with 9' ceiling and custom cabinets
Tankless Water Heater and Sodded Yard
2/10 Builder Warranty and Closing Cost Program
Walton Creek has Under Ground Utilities, Street Lights, Side Walks, Natural Gas, Pool and Cabana
Elevation 1 - See Website for Additional Elevations